Планка шурующая ТШПМ-1,45 в Сарыагаше

Шурующая планка ТШПМ 1.45
Планка шурующая ТШПМ 1.45
Планка шурующая ТШПМ 1.45 чертеж
Чертеж планки шурующей ТШПМ 1.45
Шурующая планка ТШПМ 1.45
Планка шурующая ТШПМ 1.45 чертеж
Цена
114 480 ₸
От 114 480 ₸ с доставкой до г.
Логотип WhatsApp Связаться
по WhatsApp
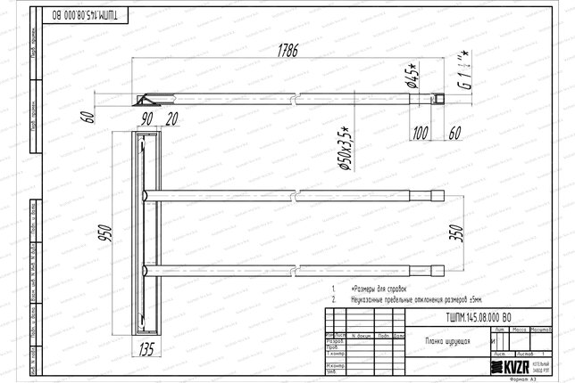
Планка шурующая ТШПМ 1,45 устанавливается в топках ТШПМ мощностью 1,45 МВт.

Технические характеристики

Тип оборудованияТопка ТШПМ

Планка шурующая ТШПМ-1,45

Планка шурующая ТШПМ 1,45 устанавливается в топках ТШПМ мощностью 1,45 МВт.

Шурующая планка топки ТШПМ-1,45 состоит из собственно планки и обработанных труб, через которые подается вода для охлаждения планки водой. Шурующая планка предназначена для продвижения топлива по блок решетке, шуровки горящего слоя, сброса выгоревшего шлака и подачи раскаленных кусочков топлива под свежее топливо. Шурующая платка крепится к опорам каретки и приводится в движение редуктором. Возвратно-поступательное движение планки ТШПМ происходит через бронзовые либо чугунные втулки.

Изготавливаем шурующие планки топок ТШПМ по чертежам заказчика.

Изготавливаем и поставляем полный перечень комплектующих топок ТШПМ, а также водогрейные котлы, устанавливаемые на топки ТШПМ, и комплектующие котлов Братск.

Чтобы купить шурующую планку ТШПМ 1,45 воспользуйтесь услугами нашего электронного магазина или обратитесь по телефону +7 (7172) 69-59-73.

Дополнительно потребуется

Золоуловитель ЗУ 1.6
Цена 438 840 тг.
Котел КВм 1.45 МВт с ТШПМ
Котел КВм 1.45 с ТШПМ
Вид топкиМеханическая, ТШПМ
Максимальная тепловая мощность, МВт1.45
ТопливоТвердое, Уголь
Отапливаемая площадь, м²от 12200 до 16000
Цена 10 284 120 тг.
Транспортер шлакоудаления
Цена 7 314 000 тг.
Автоматика механической топки ТШПМ
Цена 1 462 800 тг.

Похожая продукция

Блок решетка топки ТШПМ
Цена 826 800 тг.
Втулка бронзовая топки ТШПМ
Цена 92 856 тг.
Каретка в сборе ТШПМ-1.45
Цена 297 648 тг.
Ролик прижимной топки ТШПМ
Цена 54 696 тг.
Шестерня привода топки ТШПМ
Цена 64 872 тг.
Штанга топки ТШПМ
Цена 165 360 тг.

Сертификаты товара

Сертификат на топки
Сертификат на топки

Собственное производство

Котельный завод производит
  • Паровые котлы от 300 кг до 2.5 тонны пара в час
  • Промышленные водогрейные котлы от 150 КВт до 4 МВт на всех видах топлива
  • Механические топки ТШПМ, шурующая планка и ТЛПХ, ленточное полотно прямого хода
  • Циклоны для очистки воздуха и дымовых газов для производств и промышленных отраслей
  • Транспортеры и системы топливоподачи и шлакоудаления
Подробнее о производстве
Собственное производство
Смотреть видео
с производства